Votre recherche immobilière NANTES
Descriptif
Réf. : 750051008-487.à vendre â Appartement T2 â Mellinet, Nantes Au cÅur du quartier recherché de Mellinet, découvrez ce T2 fonctionnel et agréable, idéal pour un premier achat ou un...
Descriptif
Réf. : 750051008-488.à vendre â Appartement T2 â Mellinet, Nantes Au cÅur du quartier prisé de Mellinet, cet appartement T2 de 38 m² offre un cadre de vie fonctionnel et agréable, idéal...
Descriptif
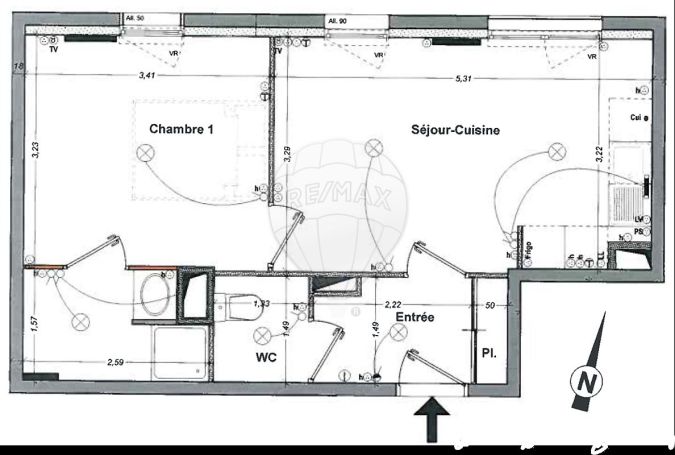
Réf. : 750051008-484.à vendre â Appartement T2 avec terrasse â Quartier Mellinet Au cÅur du quartier recherché de Mellinet, cet appartement de 2 pièces de 43,35 m² allie confort et...

Votre recherche immobilière NANTES