Votre recherche immobilière ROYAN PORT
Descriptif
Réf. : 145.Entre ROYAN et SAINT-GEORGES-DE-DIDONNE, PARC DE VALLIàRES â Maison rénovée de 138 m², plages à pied. Dans un environnement recherché et au calme, cette belle maison...
Descriptif
Réf. : TP_Royan_0102.AIP vends propriété d'exception à 15km de Royan et 10km des plages océanes. Bordé par un canal et dans un calme absolu, cette propriété est niché au milieu...
Descriptif
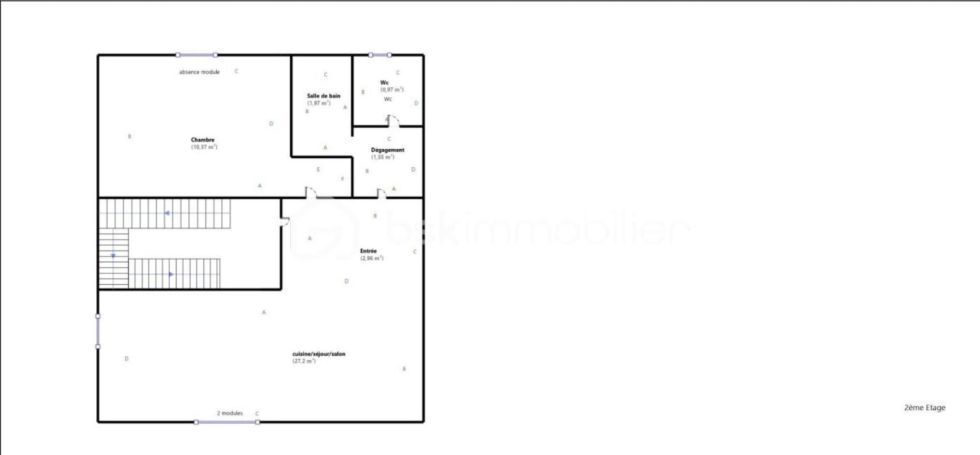
Réf. : 199613.COUP DE COEUR SECTEUR PRISà DE ROYAN DANS UN ENVIRONNEMENT CALME. Cette belle propriété spacieuse se trouve à proximité, des commerces, 5 min à pieds du Super U,...

Votre recherche immobilière ROYAN PORT
Descriptif
Réf. : 198572.Situé à Royan (17200), ce terrain constructible viabilisé de 235m² offre une opportunité exceptionnelle pour créer la propriété de vos ràªves. Royan,...
Descriptif
Réf. : 749351007-378.Au cÅur du bourg de Médis - 5 minutes de Royan, à quelques pas des commerces, de l'école et des transports en commun. Cette belle maison de caractère du début de 1850...
Descriptif
Réf. : 749351096-23.à ROYAN, vivez l'esprit loft en plein centre ville ! Un bien rare pour les amateurs de lieux atypiques, de confort moderne et de vie citadine, tout à pied ! à deux pas du marché...
Descriptif
Réf. : 200737.10 mn de la plage de st Georges de Didonne cette propriété bénéficie d'un emplacement privilégié à seulement 9 km de Royan idéalement nichée dans un...
Descriptif
Réf. : 104720.REF 104720 - à Royan, cette adresse profite d'un emplacement connecté aux commerces de proximité, aux restaurants et aux transports en commun avec la ligne 2 au pied de la résidence. Le...
Descriptif
Réf. : 749351007-283.Avis de l'expert Découvrez HORIZON, un projet immobilier avant-gardiste niché au coeur de Royan, qui réinventel'art de vivre ensemble. HORIZON vous offre une expérience résidentielle...
Descriptif
Réf. : 201087.ROYAN PONTAILLAC APPARTEMENT EXCEPTIONNEL VUE SUR MER AVEC SA TERRASSE DE 27 M²; Situé à Royan, cet appartement avec son architecture des années 50, bénéficie d'un...
Descriptif
Réf. : 200140.Royan Centre - Front de Mer Idéalement situé au troisième et dernier étage d'un immeuble de standing de seulement quatre appartements, ce bien d'exception offre une vue imprenable sur la...
Descriptif
Réf. : 104731.REF 104731 - à Royan, dans un quartier vivant à proximité immédiate des commerces et du marché central, cette adresse bénéficie d'un arràªt de bus au pied...
Descriptif
Réf. : 104728.REF 104728 - à Royan, entre l'avenue de Rochefort et l'avenue Daniel Hedde, cette adresse permet de rejoindre le marché central en 10 minutes à pied et la plage de la Grande-Conche en 7...
Descriptif
Réf. : 330818.à deux pas des commerces et proche du marché central, cet appartement lumineux situé au 10áµ étage d'une résidence avec ascenseurs offre un cadre de vie agréable et...
Descriptif
Réf. : 327271.ROYAN â CENTRE-VILLE â APPARTEMENT T2 ENTIàREMENT RàNOVà â BALCON â à 450 M DE LA PLAGE Idéalement situé en plein cÅur de Royan, à ...

Votre recherche immobilière ROYAN PORT