APPARTEMENT T4 76 M2 NANTES



Descriptif de l'annonce
Réf. : A6054
appartement t4 76 m2 nantes (44000).
NANTES - MICHELET / PETIT PORT T4 76 m² - Dernier étage avec ascenseur - Garage boxé - Balcon Sud  230 140 ⬠FMI boulevard Michelet - Quartier Universités / Petit Port
OPPORTUNITà RARE SUR LE SECTEUR
Dans l'un des quartiers les plus recherchés de Nantes, à proximité immédiate des universités, des transports et des commerces, découvrez cet appartement T4 de 76 m², situé au 4áµ et dernier étage avec ascenseur d'une résidence bien entretenue.
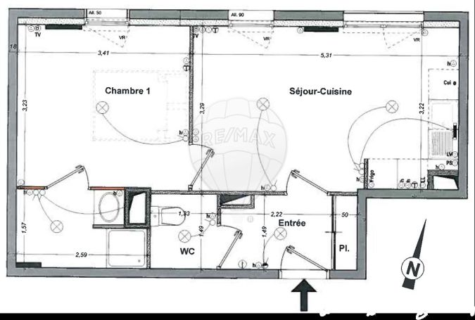
 Lumineux - Fonctionnel - Fort potentiel L'appartement se compose de : une entrée, un séjour lumineux ouvrant sur un balcon exposé plein Sud, une cuisine indépendante avec loggia, trois chambres, une salle de bains, un WC séparé, un espace de rangement / local technique.
La situation en dernier étage, l'exposition Sud et l'absence de voisin au-dessus offrent un confort de vie rare et une belle luminosité tout au long de la journée.
 Des annexes très recherchées à Nantes : Garage boxé de 14,5 m² (porte électrique),Cave Ascenseur Balcon + loggia.
 Des travaux de rafraà®chissement sont à prévoir, permettant à l'acquéreur de personnaliser le bien à son goà»t sans payer une rénovation imposée.
Un atout pour une résidence principale, un investissement locatif ou un projet de colocation. Â
Chauffage individuel gaz Â
Menuiseries PVC double vitrage Â
Prix : 230 140 ⬠FMI, dont honoraires de 10 140,00 ⬠TTC (â 4,61 %) à la charge de l'acquéreur, soit 220 000 ⬠net vendeur. Â
Un bien rare sur le secteur Michelet, alliant emplacement, dernier étage, garage boxé et potentiel après rénovation.
Pour plus d'information, n'hésitez pas à prendre attache avec Gaelle DESROUSSEAUX, Mandataire en transaction immobilières.
Les informations sur les risques auxquels ce bien est exposé sont disponibles sur le site Géorisques http://www.georisques.gouv.fr
Caractéristiques
- Balcon
- Garage
- Ascenseur

